**Elegancka Restauracja przy Placu Konstytucji** Wynajem

Warszawa
13 475 PLN
87 PLN /m2
  • Cena 13 475 PLN
  • Powierzchnia 155 m2
  • Cena za m2 87 PLN
  • Piętro parter/6
  • Rok budowy 2018

Opis oferty

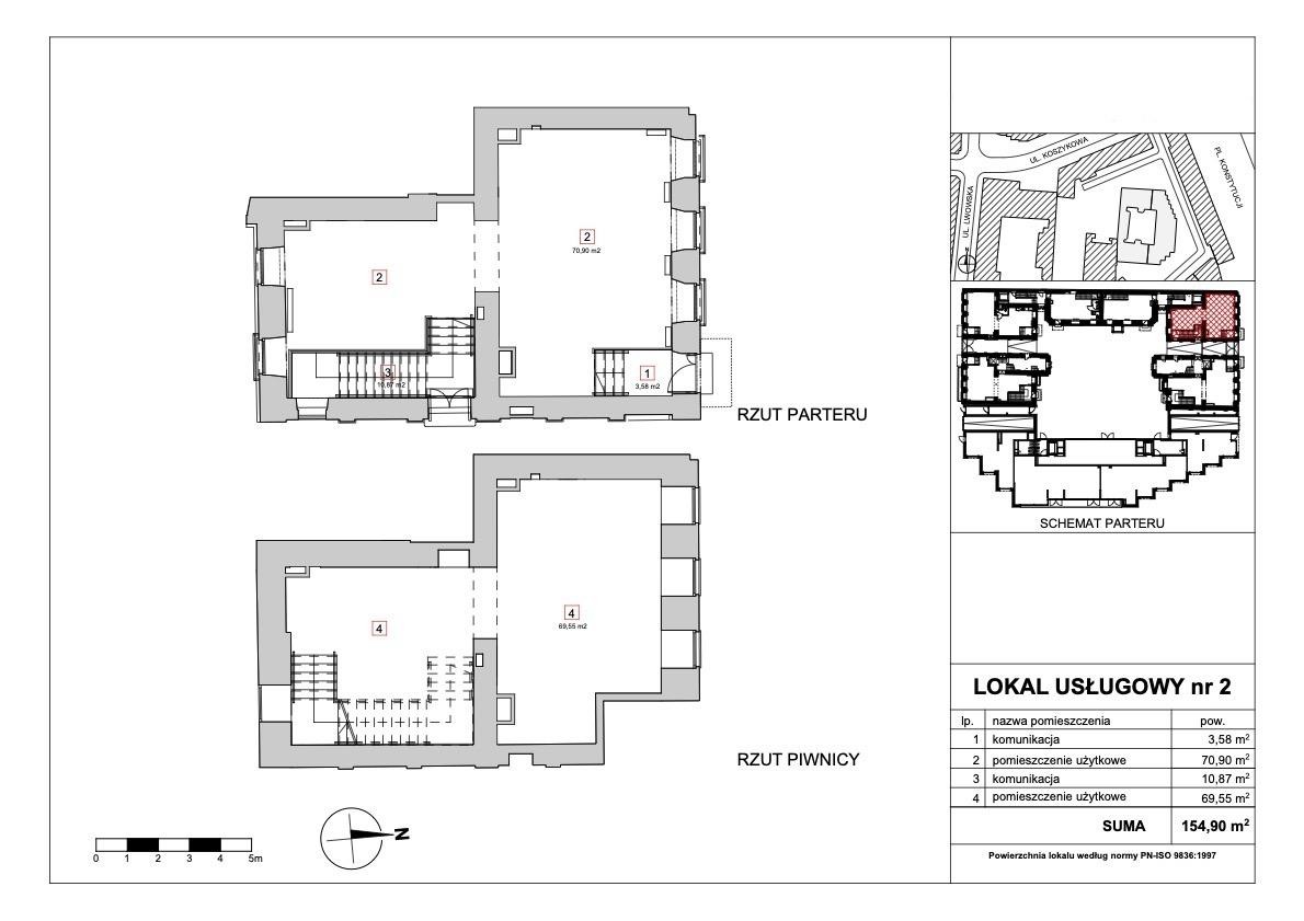
Mamy przyjemność zaoferować Państwu wyjątkową ofertę Najmu Lokalu Usługowego o powierzchni 154,90 m2 położonego na parterze (85,35 m2) oraz poziomie -1 (69,55 m2) odrestaurowanej kamienicy w samym Centrum Warszawy przy ul. Koszykowej, nieopodal placu Konstytucji.

Sama kamienica, w której znajduje się lokal została pieczołowicie odrestaurowana w roku 2018, a lokal wykończony jest z wysokiej jakości materiałów.
Wysokość pomieszczeń na parterze wynosi ok 430 cm a na poziomie 1 ok 320 cm.

Lokal został w pełni przystosowany do prowadzenia ekskluzywnej restauracji i posiada:

- profesjonalny system wentylacyjny
- wysokiej jakości klimatyzację
- monitoring wewnętrzny z kamerami CCTV
- nagłośnienie
- instalację alarmową
- dwie łazienki
- wydzieloną, otwartą kuchnię
- recepcję/bar
- pełne wykończenie w wysokiej jakości podłogi, oświetlenie, zabudowy stolarskie itp.

Do lokalu przynależy również przestronny ogródek gastronomiczny.

Istnieje możliwość wynajęcia lokalu wraz z pełnym wyposażeniem sali oraz kuchni za odstępnym (opcja preferowana) szczegółowe informacje dostępne na spotkaniu.

Lokal położony jest w bardzo dobrej lokalizacji pomiędzy Halą Koszyki i Placem Konstytucji. W okolicy znajduje się wiele biur, instytucji oraz punktów turystycznych co gwarantuje dostęp do gości restauracji.

Warunki Najmu:

- Czynsz Najmu - 13 476,30 zł netto/miesięcznie
- Czynsz Administracyjny wraz z zaliczkami na media - 2168,60 zł netto/miesięcznie

Zapraszam do kontaktu


Treść niniejszego ogłoszenia nie stanowi oferty handlowej w rozumieniu Kodeksu Cywilnego.
Oferta wysłana z programu IMO dla pośredników. więcej

Informacje

Numer oferty3
Typ transakcjiWynajem
Cena13 475 PLN
Powierzchnia155 m2
Cena za m287 PLN / m2
Piętroparter/6
Rok budowy2018
Standard wykończenialuksusowy
Stan lokalubardzo dobry
Typ budynkukamienica
Typ drogiasfaltowa
Okres wynajmu5
Forma własnościwłasność
Parkingprzy ulicy
Kanalizacjamiejska
Ogrzewaniemiejskie
Gazmiejski
Prądjest
Wodamiejska
Liczba wejść2
Typ ochronymonitoring
Dostępny od2022-10-24 00:00:00
Typ Drogiasfaltowa
Typ Lokalugastronomiczny
Ogrzewaniemiejskie

Informacje dodatkowe

  • Internet
  • Klimatyzacja
  • Witryna
  • Ochrona
  • Sieć lokalna
  • Pom. socjalne
  • Drzwi/okna antywłamaniowe

Lokalizacja