**Lokal Usługowy w Kamienicy przy Metrze i ZOO** Sprzedaż

Warszawa, Jagiellońska
2 300 000 PLN
11 220 PLN /m2
  • Cena 2 300 000 PLN
  • Powierzchnia 205 m2
  • Cena za m2 11 220 PLN
  • Piętro parter/7
  • Rok budowy 2021

Opis oferty

Mamy przyjemność przedstawić Państwu ofertę wyjątkowego Lokalu Usługowego/Gastronomicznego położonego w frontowej części odrestaurowanej ponad 100letniej kamienicy przy ul. Jagiellońskiej.

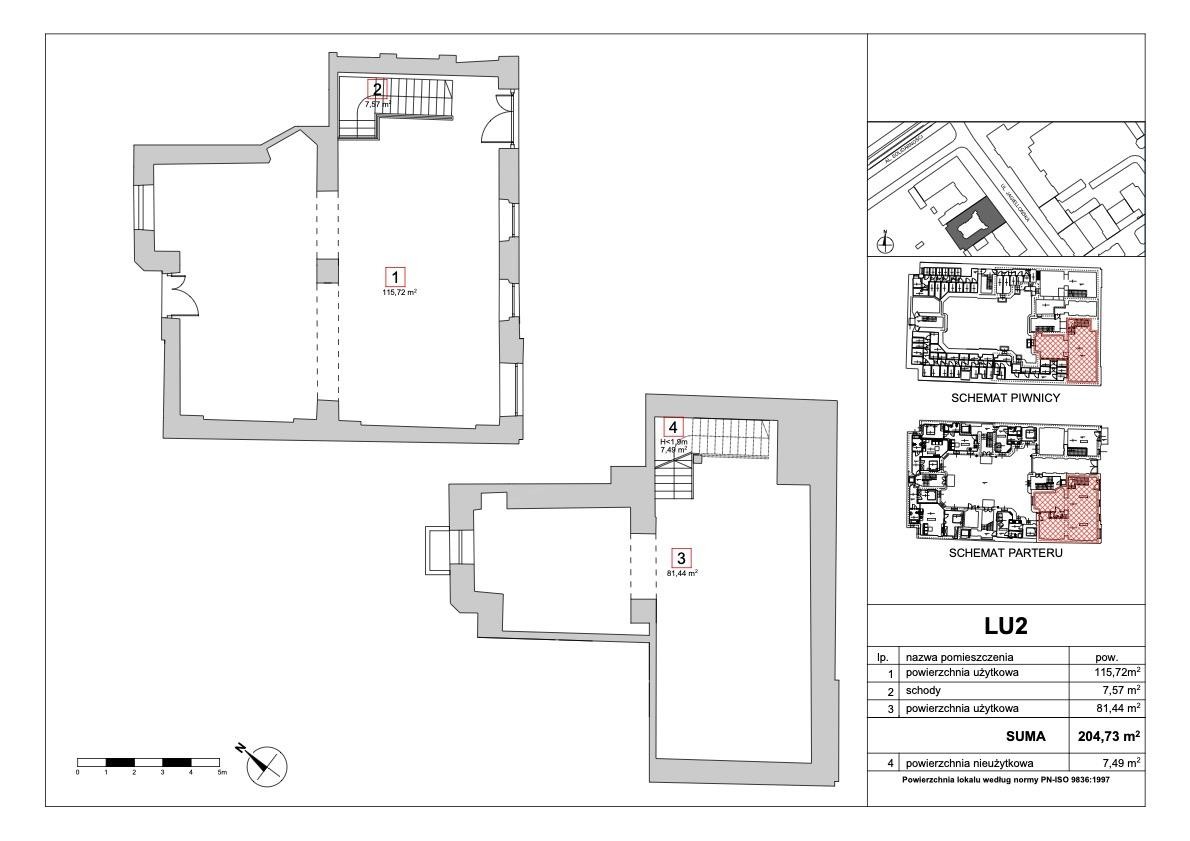
Prezentowana przestrzeń oferuje 204,37 m2 ergonomicznej powierzchni zlokalizowanej na poziomie 0 (123,29 m2) oraz -1 (81,44 m2).

Jest to świetne miejsce pod wszelkiego rodzaju biznes - w tym działalność gastronomiczną - ponieważ piękna fasada kamienicy przyciąga wzrok przechodniów oraz przejeżdżających kierowców a do lokalu wchodzimy bezpośrednio z ulicy.

Wokół budynku dostępna jest duża ilość miejsc postojowych, dzięki czemu nie ma problemu z zaparkowaniem auta

W odległości kilku minut spacerem od Lokalu znajdują się:

- Stacja Metra Dworzec Wileński oraz Stadion Narodowy
- Dworzec Kolejowy Warszawa Wileńska
- Przystanek Tramwajowy Port Praski oraz Dworzec Wileński
- Przystanek Autobusowy Port Praski oraz Dworzec Wileński

Dostępne media:

- Centralne ogrzewanie
- Ciepła i zimna woda z sieci miejskiej
- Kanalizacja
- Gaz
- Klimatyzacja
- Wentylacja Gastronomiczna

Wysokość:

- Poziom 0 425 cm
- Poziom -1 317 cm

Cena Sprzedaży wynosi 2 300 000 zł netto.


Zapraszamy do kontaktu.
Tel. 794 529 606


Treść niniejszego ogłoszenia nie stanowi oferty handlowej w rozumieniu Kodeksu Cywilnego.
Oferta wysłana z programu IMO dla pośredników. więcej

Informacje

Numer oferty9
Typ transakcjiSprzedaż
Cena2 300 000 PLN
Powierzchnia205 m2
Cena za m211 220 PLN / m2
Piętroparter/7
Rok budowy2021
Typ budynkukamienica
Rynekwtórny
Typ drogiasfaltowa
Parkingprzy ulicy
Prądjest
Wodamiejska
Gazmiejski
Ogrzewaniemiejskie
Kanalizacjamiejska
Liczba wejść2
Typ ochronymonitoring
Dostępny od2022-10-24 00:00:00
Typ drogiasfaltowa
Typ lokalubiurowo-magazynowy, biurowo-usługowy, biurowy, gastronomiczny, handlowo-usługowy, handlowy, usługowy, ekspozycja, handlowo-biurowe, usługi medyczne
Ogrzewaniemiejskie

Informacje dodatkowe

  • Internet
  • Klimatyzacja
  • Parking osob.
  • Witryna
  • Ochrona
  • Sieć lokalna
  • Pom. socjalne
  • Drzwi/okna antywłamaniowe
  • Pom. biurowe

Lokalizacja

Plany

Plan 1